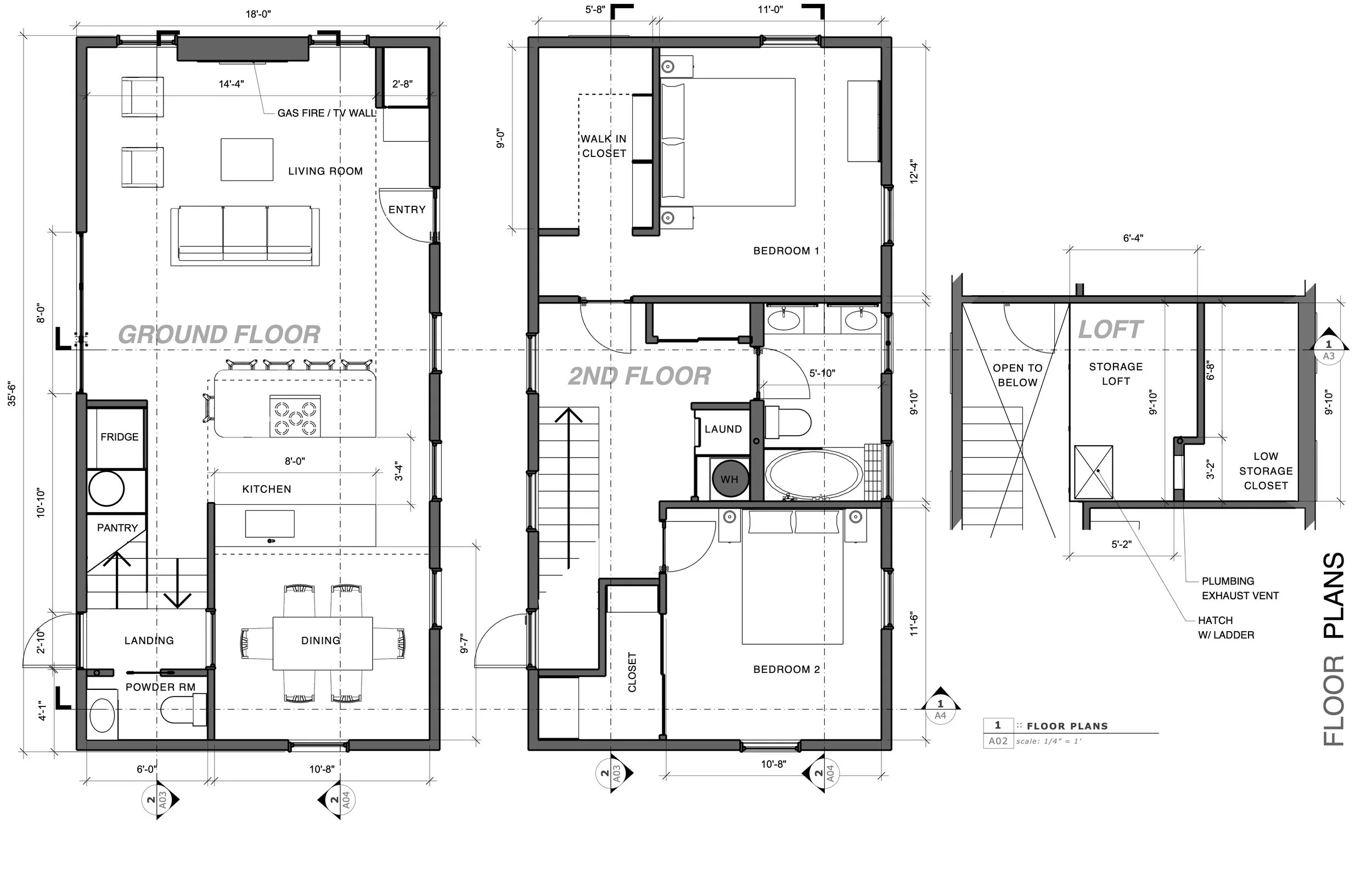
CROMWELL

TWO STORY

2 bedroom / 1.5 bath

1280 SF

Although compact, this family-sized house is all about social connection! It’s designed to maximize indoor/outdoor connection with its classical front porch to interact with the neighbors, and a wall of glass connecting the great room to the back deck/patio, great for meals outside and for entertaining guests.

Ten foot high ceilings give the ground floor a spacious feeling, and the central placement of the kitchen connects it all, including a generous bar, seating 5 comfortably.

Includes:

  • Kitchen

    • Dishwasher

    • full size fridge

    • Cooktop or range in island

    • Dining island/bar to fit 5 or more with storage under

  • Restroom

    • double vanity

    • shower or tub

    • toilet

  • Powder room

    • toilet

    • vanity

  • Water heater (standard size)

  • Mini split HVAC (4 heads)

  • Bedrooms: 2

  • Laundry tower hookups

  • Storage loft


Renderings